Ref: 103282   

Casa en excelente posición en Maria para terminar
Casa en venta en María, 78.500 €

Descripción



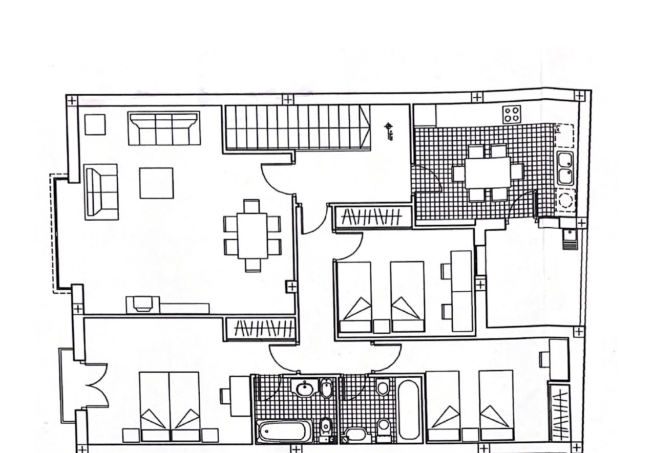
Aquí, en una posición privilegiada en Maria con las vistas más increíbles, se encuentra una casa de 3 dormitorios y 2 baños para completar.
Esta casa se encuentra en una zona tranquila de Maria. Hay un centro médico y un centro deportivo cerca de la propiedad y luego las tiendas a un corto paseo con bares y restaurantes y una hermosa iglesia.
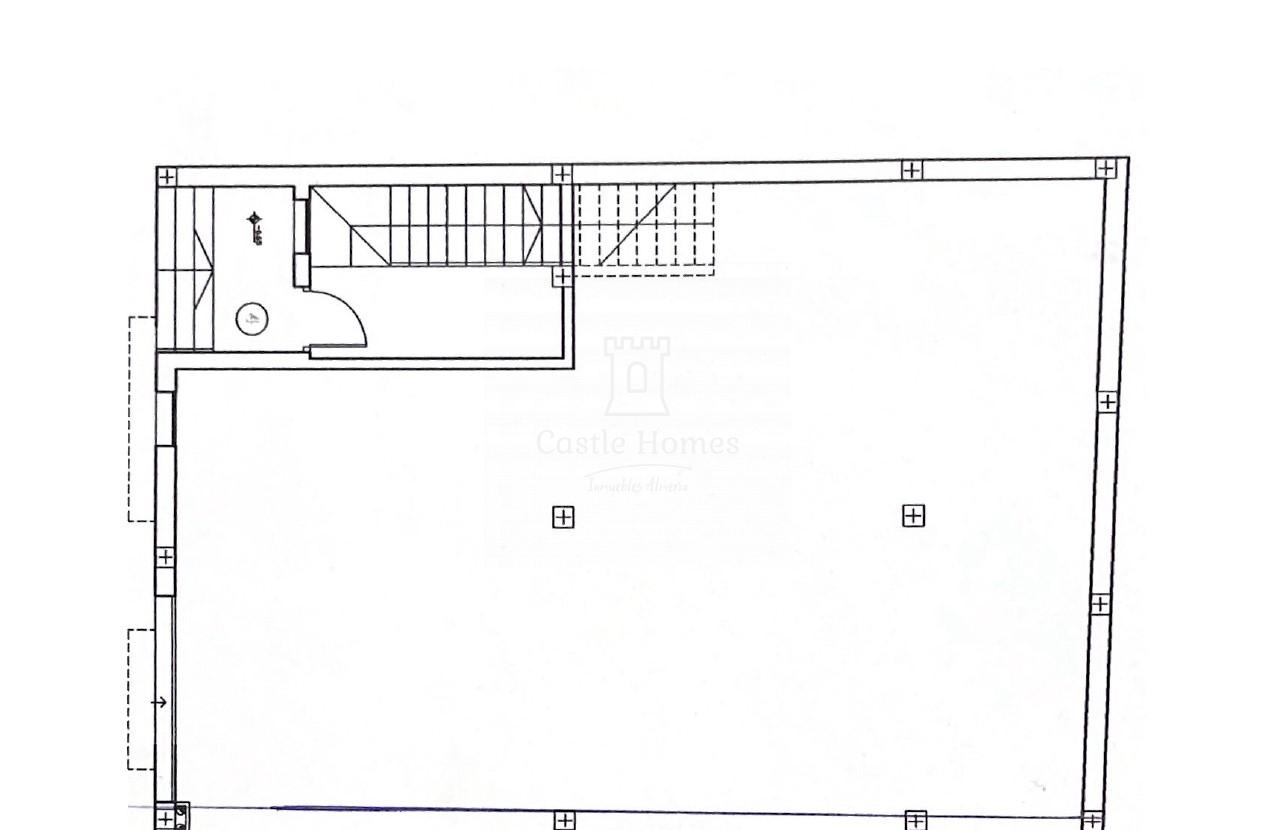
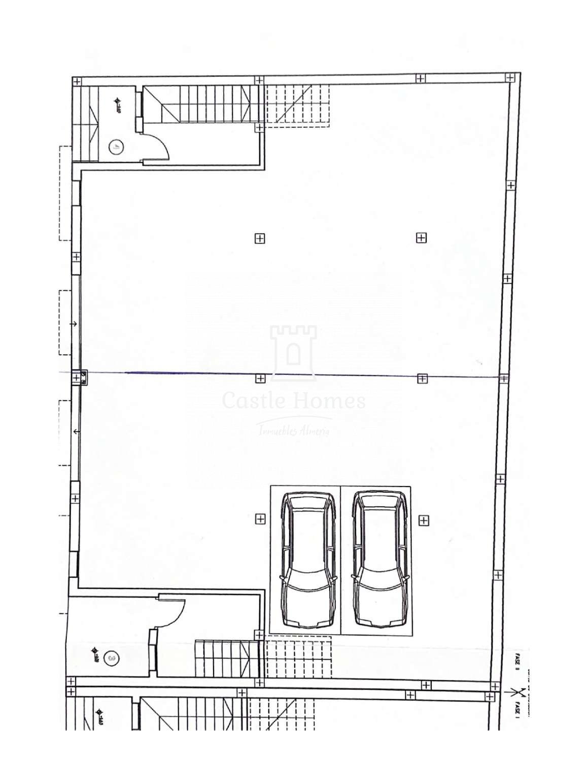
Puede ingresar a la propiedad por la puerta principal o por la puerta del garaje.
El garaje es grande y se podría convertir en un apartamento en esta planta.
Escaleras hasta el primer piso.
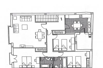
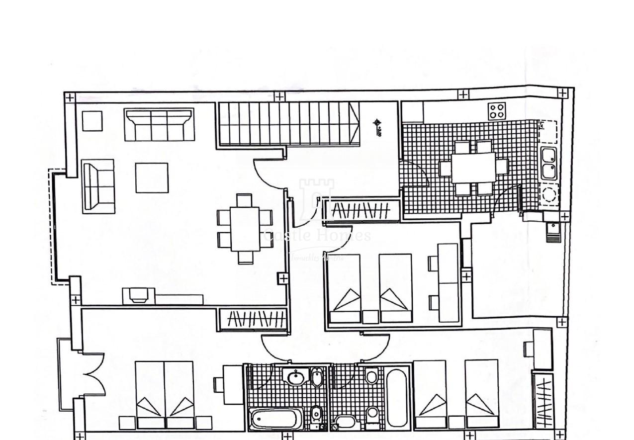
En esta planta hay un gran salón con vistas a las montañas.
Hay una cocina con un patio exterior.
Los tres dormitorios tienen armarios empotrados y uno de los dormitorios tiene baño en suite. El dormitorio principal también está ubicado con vistas a las montañas. Verdaderamente espectacular.
La propiedad no se ha completado y una estimación aproximada para hacerlo sería de 30-35.000 euros.
También existe la oportunidad de comprar un terreno al lado de la propiedad que podría ser una zona de jardín ideal. Esta propiedad es ideal para alguien que quiera hacer de ella su hogar perfecto, ya que existe la oportunidad de cambiar la distribución de las habitaciones y elegir el acabado que desee.


Características

Generales
  • 2 Plantas
  • 3 Dormitorios
  • 2 Baños

Superficies
  • Constr.: 240 m2


Precio

78.500 €

  • m2 constr.: 327 €

Certificado energético

CALIFICACIÓN ENERGÉTICA

Consumo energía
kW h / m2 año
Emisiones CO2
kg CO2 / m2 año
A
B
C
D
E
F
G
EN TRÁMITE EN TRÁMITE

Situación y Entorno

C. de Juan Aliaga Maestro Nacional.
04838, María (Almería)
   Llamar

Uso de cookies

Utilizamos cookies propias y de terceros para mejorar la experiencia en nuestra web y con fines analíticos. Algunas son necesarias para el correcto funcionamiento de la web, otras podrás configurarlas o rechazarlas. Puedes ver más información en la página de Política de cookies